TP型平面包络环面蜗杆减速机产品简介及标记 TPG减速机
TP型平面包络环面蜗杆减速机(JB/T9051-1991)为平面一次包络蜗杆传动。中心距:100、125、160、200、250、315、400、500。速比:10、12.5、16、20、25、31.5、40、50、60。平面包络环面蜗杆减速机是一种新兴的传动装置,其承载能力大,传动效率高,结构紧凑、合理。这种减速机可以广泛地应用于各种传动机械中的减速传动,如冶金、矿产、起重、化工、建筑、橡塑、船舶等行业以及其它机械设备上,适用工作环境温度为-40℃~+40℃,输入轴转速不大于1500转/分,蜗杆轴可正反两方向旋转。此减速机是按照中华人民共和国机械行业标准JB/T9051——1999《平面包络环面蜗杆减速机》设计制造。
型号与标记示例
1 型号

标记示例
例 蜗杆在蜗轮之下, 中心距为200mm, 公称传动比为10, 第二种装配型式, 有风扇冷却的平面 包络环面蜗杆减速器: 减速器 TPU200 - 10 - 2F JB/T 9051—1999
TP型平面包络环面蜗杆减速机基本参数
中心距a (mm)
|
型号
|
中心距a
|
|||||||||||||
|
TPG
|
第一系列
|
80
|
100
|
—
|
—
|
—
|
—
|
—
|
—
|
—
|
—
|
—
|
—
|
—
|
|
第二系列
|
—
|
—
|
—
|
—
|
—
|
—
|
—
|
—
|
—
|
—
|
—
|
—
|
—
|
|
|
TPU
|
第一系列
|
125
|
—
|
160
|
—
|
200
|
—
|
250
|
—
|
315
|
—
|
400
|
—
|
500
|
|
第二系列
|
—
|
140
|
—
|
180
|
—
|
224
|
—
|
280
|
—
|
355
|
—
|
450
|
—
|
|
|
TPS
|
第一系列
|
125
|
—
|
160
|
—
|
200
|
—
|
250
|
—
|
315
|
—
|
400
|
—
|
500
|
|
第二系列
|
—
|
140
|
—
|
180
|
—
|
224
|
—
|
280
|
—
|
355
|
—
|
450
|
—
|
|
|
TPA
|
第一系列
|
125
|
—
|
160
|
—
|
200
|
—
|
250
|
—
|
315
|
—
|
400
|
—
|
500
|
|
第二系列
|
—
|
140
|
—
|
180
|
—
|
224
|
—
|
280
|
—
|
355
|
—
|
450
|
—
|
|
注:优先选用第一系列,表中第二系列的中心距仅提出型式规格。
减速器的公称传动比i
|
型 号
|
TPG TPU TPS TPA
|
||||||||
|
公称传动比i
|
10
|
12.5
|
16
|
20
|
25
|
31.5
|
40
|
50
|
63
|
蜗杆螺旋线方向 为右旋。
TPG80、TPG100、通用型减速机形式及外形尺寸(Ⅰ—Ⅲ)

TPG通用型减速器形式及外形尺寸 (mm)
|
型号
|
a
|
B
|
B1
|
B2
|
C
|
C1
|
H
|
H1
|
L
|
L1
|
L2
|
L3
|
L4
|
l
|
l1
|
d
|
d1
|
b
|
b1
|
t
|
t 1
|
h
|
Ф
|
质量(kg)
|
|
TPG80
|
80
|
250
|
242
|
50
|
220
|
206
|
100
|
280
|
381
|
130
|
210
|
86
|
201
|
58
|
110
|
35
|
45
|
10
|
14
|
38
|
48.5
|
18
|
19
|
53
|
|
TPG100
|
100
|
290
|
284
|
58
|
250
|
240
|
110
|
318
|
464
|
160
|
235
|
102
|
254
|
82
|
110
|
40
|
55
|
12
|
16
|
43
|
59
|
20
|
19
|
85
|
TPG80、TPG100、通用型减速机形式及外形尺寸(Ⅳ—Ⅵ)

TPG通用型减速器形式及外形尺寸 (mm)
|
型号
|
a
|
B
|
B1
|
C
|
C1
|
H
|
H1
|
L
|
L1
|
L2
|
L3
|
B2
|
l
|
l1
|
d
|
d1
|
t
|
t 1
|
b
|
b1
|
h
|
Ф
|
质量(kg)
|
|
TPG80
|
80
|
250
|
242
|
220
|
206
|
180
|
360
|
201
|
381
|
210
|
86
|
50
|
58
|
110
|
35
|
45
|
38
|
48.5
|
10
|
14
|
18
|
19
|
53
|
|
TPG100
|
100
|
290
|
284
|
250
|
240
|
210
|
415
|
254
|
464
|
235
|
102
|
58
|
82
|
110
|
40
|
55
|
43
|
59
|
12
|
16
|
20
|
19
|
85
|

TPG通用型减速器形式及外形尺寸 (mm)
|
型号
|
a
|
(φ)D
|
h1
|
B
|
B1
|
C
|
C1
|
H
|
H1
|
L
|
L2
|
L3
|
L4
|
L5
|
l
|
l1
|
d
|
d1
|
b
|
b1
|
t
|
t 1
|
L6
|
h
|
Ф
|
质量(kg)
|
|
TPG80
|
80
|
140
|
5
|
270
|
260
|
240
|
230
|
110
|
86
|
210
|
100
|
180
|
180
|
201
|
58
|
110
|
35
|
45
|
10
|
14
|
38
|
48.5
|
75
|
18
|
19
|
53
|
|
TPG100
|
100
|
170
|
5
|
300
|
300
|
260
|
260
|
125
|
102
|
235
|
125
|
203
|
210
|
254
|
82
|
110
|
40
|
55
|
12
|
16
|
43
|
59
|
90
|
20
|
19
|
85
|
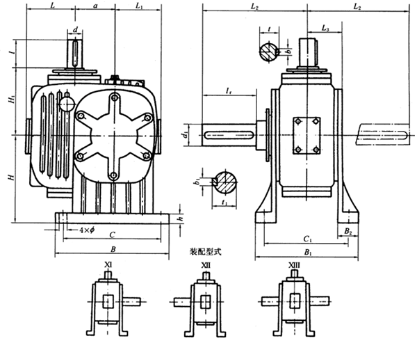
TPG80、TPG100、通用型减速机形式及外形尺寸(Ⅺ—XIII)

PG通用型减速器形式及外形尺寸 (mm)
|
型号
|
a
|
B
|
B1
|
C
|
C1
|
H1
|
H
|
B2
|
L
|
L1
|
L2
|
L3
|
l
|
l1
|
d
|
d1
|
t
|
t 1
|
b
|
b1
|
h
|
Ф
|
质量(kg)
|
|
TPG80
|
80
|
230
|
242
|
220
|
206
|
143
|
180
|
50
|
100
|
98
|
210
|
86
|
58
|
110
|
35
|
45
|
38
|
48.5
|
10
|
14
|
18
|
19
|
53
|
|
TPG100
|
100
|
270
|
284
|
220
|
240
|
172
|
210
|
58
|
106
|
123
|
235
|
100
|
82
|
110
|
40
|
55
|
43
|
59
|
12
|
16
|
20
|
19
|
85
|
TPU125、TPU160、TPU200、TPU250、TPU315、TPU400、TPU500通用型减速机形式及外形尺寸

TPU通用型减速器形式及外形尺寸 (mm)
|
型号
|
a
|
B
|
B1
|
B2
|
C
|
C1
|
H
|
H1
|
h
|
L
|
L1
|
L2
|
L3
|
L4
|
L5
|
l
|
l1
|
d
|
d1
|
d2
|
b
|
b1
|
t
|
t 1
|
Ф
|
质量(kg)
|
|
TPU125
|
125
|
300
|
300
|
70
|
250
|
250
|
125
|
422
|
30
|
307
|
320
|
185
|
280
|
217
|
175
|
82
|
140
|
40
|
70
|
80
|
12
|
20
|
43
|
74.5
|
19
|
157
|
|
TPU160
|
160
|
380
|
375
|
100
|
320
|
310
|
160
|
540
|
40
|
375
|
375
|
210
|
360
|
280
|
190
|
82
|
170
|
50
|
85
|
95
|
14
|
25
|
53.5
|
90
|
24
|
258
|
|
TPU200
|
200
|
450
|
450
|
125
|
370
|
370
|
200
|
650
|
40
|
420
|
400
|
235
|
435
|
345
|
225
|
82
|
170
|
55
|
95
|
110
|
16
|
28
|
59
|
101
|
28
|
475
|
|
TPU250
|
250
|
600
|
550
|
150
|
500
|
450
|
225
|
820
|
50
|
530
|
495
|
290
|
520
|
408
|
270
|
105
|
210
|
65
|
120
|
140
|
18
|
32
|
69
|
127
|
35
|
800
|
|
TPU315
|
315
|
720
|
590
|
120
|
630
|
500
|
280
|
990
|
65
|
630
|
600
|
360
|
605
|
492
|
345
|
130
|
250
|
80
|
140
|
160
|
22
|
36
|
85
|
148
|
39
|
1100
|
|
TPU400
|
400
|
850
|
720
|
160
|
750
|
620
|
320
|
1200
|
75
|
720
|
720
|
425
|
692
|
540
|
405
|
165
|
300
|
100
|
180
|
200
|
28
|
45
|
106
|
190
|
48
|
2150
|
|
TPU500
|
500
|
1060
|
900
|
200
|
920
|
760
|
400
|
1490
|
90
|
850
|
840
|
495
|
845
|
680
|
488
|
165
|
350
|
110
|
200
|
240
|
32
|
45
|
117
|
210
|
56
|
3600
|
TPS125、TPS160、TPS200、TPS250、TPS315、TPS400、TPS500、通用型减速机形式及外形尺寸

TPS通用型减速器形式及外形尺寸
|
型号
|
a
|
(Ф)
D
|
(Ф)
D1
|
h1
|
(Ф)
B
|
B1
|
B2
|
H
|
L
|
L1
|
L2
|
L3
|
L4
|
l
|
l1
|
d
|
d1
|
b
|
b1
|
t
|
t 1
|
h
|
Ф
|
质量
(kg)
|
|
TPS125
|
125
|
380
|
280
|
6
|
330
|
265
|
193
|
180
|
307
|
280
|
203
|
320
|
175
|
82
|
140
|
40
|
70
|
12
|
20
|
43
|
74.5
|
25
|
19
|
170
|
|
TPS160
|
160
|
530
|
380
|
10
|
470
|
338
|
268
|
200
|
375
|
365
|
280
|
375
|
190
|
82
|
170
|
50
|
85
|
14
|
25
|
53.5
|
90
|
40
|
24
|
290
|
|
TPS200
|
200
|
650
|
480
|
10
|
580
|
405
|
335
|
250
|
425
|
436
|
330
|
400
|
210
|
82
|
170
|
55
|
95
|
16
|
28
|
59
|
101
|
40
|
32
|
530
|
|
TPS250
|
250
|
800
|
600
|
12
|
700
|
495
|
400
|
280
|
530
|
520
|
406
|
495
|
270
|
105
|
210
|
65
|
120
|
18
|
32
|
69
|
127
|
50
|
35
|
930
|
|
TPS315
|
315
|
920
|
710
|
15
|
820
|
623
|
460
|
355
|
630
|
605
|
492
|
600
|
340
|
130
|
250
|
80
|
140
|
22
|
36
|
85
|
148
|
65
|
39
|
1300
|
|
TPS400
|
400
|
1100
|
850
|
15
|
1000
|
740
|
550
|
420
|
720
|
692
|
540
|
720
|
405
|
165
|
300
|
100
|
180
|
28
|
45
|
106
|
190
|
75
|
48
|
2450
|
|
TPS500
|
500
|
1340
|
1060
|
20
|
1200
|
920
|
675
|
530
|
850
|
845
|
680
|
840
|
488
|
165
|
350
|
110
|
200
|
32
|
45
|
117
|
210
|
90
|
56
|
3850
|
TPA125、TPA160、TPA200、TPA250、TPA315、TPA400、TPA500、通用型减速机形式及外形尺寸

TPA通用型减速器形式及外形尺寸
|
型号
|
a
|
B
|
B1
|
B2
|
C
|
C1
|
H
|
H1
|
h
|
L
|
L1
|
L2
|
L3
|
L4
|
L5
|
l
|
l1
|
d
|
d1
|
d2
|
b
|
b1
|
t
|
t 1
|
Ф
|
质量(kg)
|
|
TPA125
|
125
|
360
|
300
|
50
|
310
|
250
|
180
|
438
|
30
|
307
|
320
|
185
|
280
|
217
|
175
|
82
|
140
|
40
|
70
|
80
|
12
|
20
|
43
|
74.5
|
19
|
165
|
|
TPA160
|
160
|
460
|
320
|
80
|
400
|
260
|
225
|
550
|
40
|
375
|
375
|
210
|
365
|
280
|
190
|
82
|
170
|
50
|
85
|
95
|
14
|
25
|
53.5
|
90
|
24
|
285
|
|
TPA200
|
200
|
540
|
400
|
100
|
450
|
320
|
250
|
658
|
40
|
420
|
400
|
265
|
436
|
345
|
224
|
82
|
170
|
55
|
95
|
110
|
16
|
28
|
59
|
101
|
28
|
510
|
|
TPA250
|
250
|
720
|
480
|
120
|
620
|
380
|
315
|
792
|
50
|
530
|
495
|
290
|
520
|
406
|
270
|
105
|
210
|
65
|
120
|
140
|
18
|
32
|
69
|
127
|
35
|
900
|
|
TPA315
|
315
|
850
|
600
|
140
|
750
|
500
|
400
|
1000
|
65
|
630
|
600
|
360
|
605
|
492
|
345
|
130
|
250
|
80
|
140
|
160
|
22
|
36
|
85
|
148
|
39
|
1250
|
|
TPA400
|
400
|
950
|
720
|
170
|
850
|
620
|
500
|
1200
|
75
|
720
|
720
|
425
|
690
|
540
|
410
|
165
|
300
|
100
|
180
|
200
|
28
|
45
|
106
|
190
|
48
|
2300
|
|
TPA500
|
500
|
1180
|
900
|
200
|
1040
|
760
|
630
|
1530
|
90
|
850
|
840
|
495
|
845
|
680
|
488
|
165
|
350
|
110
|
200
|
240
|
32
|
45
|
117
|
210
|
56
|
3700
|
TP型平面包络环面蜗杆减速机的额定输入功率P1(80~125)
|
中心距a(mm)
|
传动比i
|
输入轴转速n1(r/min)
|
||||
|
500
|
600
|
750
|
1000
|
1500
|
||
|
额定输入功率P1(kW)
|
||||||
|
80
|
10.0
12.5
16.0
20.0
25.0
31.5
40.0
50.0
63.0
|
2.51
2.07
1.75
1.36
1.10
0.92
0.70
0.57
0.49
|
2.83
2.35
2.01
1.53
1.25
1.05
0.79
0.63
0.55
|
3.21
2.74
2.34
1.78
1.45
1.23
0.92
0.74
0.67
|
3.85
3.31
2.83
2.17
1.76
1.47
1.08
0.89
0.78
|
4.94
4.17
3.57
2.74
2.23
1.88
1.42
1.13
0.99
|
|
100
|
10.0
12.5
16.0
20.0
25.0
31.5
40.0
50.0
63.0
|
4.85
4.06
3.46
2.64
2.15
1.81
1.37
1.09
0.96
|
5.17
4.55
3.90
2.98
2.44
2.04
1.53
1.24
1.08
|
6.30
5.27
4.55
3.46
2.81
2.36
1.78
1.43
1.25
|
7.52
6.26
5.42
4.16
3.38
2.83
2.15
1.72
1.50
|
8.23
7.78
6.66
5.19
4.24
3.56
2.69
2.16
1.88
|
|
125
|
10.0
12.5
16.0
20.0
25.0
31.5
40.0
50.0
63.0
|
9.17
7.66
6.56
5.08
4.09
3.43
2.59
2.09
1.82
|
10.00
8.46
7.42
5.68
4.58
3.84
2.90
2.33
2.03
|
11.76
9.84
8.48
6.43
5.29
4.44
3.35
2.70
2.34
|
13.91
11.66
10.21
7.78
6.28
5.27
3.98
3.19
2.78
|
17.11
13.97
12.29
9.42
7.71
6.47
4.87
3.92
3.41
|
TP型平面包络环面蜗杆减速机的额定输入功率P1(160~500)
|
中心距a(mm)
|
传动比i
|
输入轴转速n1(r/min)
|
||||
|
500
|
600
|
750
|
1000
|
1500
|
||
|
额定输入功率P1(kW)
|
||||||
|
160
|
10.0
12.5
16.0
20.0
25.0
31.5
40.0
50.0
63.0
|
18.94
15.75
13.55
10.40
8.48
7.12
5.37
4.32
3.76
|
21.13
17.75
15.23
11.76
9.65
8.05
6.07
4.89
4.25
|
23.99
20.16
17.43
13.34
11.03
9.18
6.93
5.58
4.86
|
27.94
23.63
20.48
15.75
12.81
10.82
8.11
6.51
5.67
|
33.72
28.67
25.31
19.01
15.54
13.02
9.84
7.89
6.87
|
|
200
|
10.0
12.5
16.0
20.0
25.0
31.5
40.0
50.0
63.0
|
35.11
29.72
25.10
19.53
15.65
13.23
9.92
8.10
7.27
|
38.87
32.76
28.35
21.53
17.33
14.60
11.03
8.85
7.70
|
43.61
36.86
31.40
24.15
19.53
16.38
12.39
9.96
8.67
|
50.94
41.90
35.91
27.72
22.89
19.22
14.49
11.66
10.13
|
58.93
50.61
42.84
33.08
27.09
22.79
17.22
13.76
11.97
|
|
250
|
10.0
12.5
16.0
20.0
25.0
31.5
40.0
50.0
63.0
|
60.98
50.08
44.63
34.55
28.14
23.63
17.75
14.39
12.50
|
67.35
57.33
49.67
37.80
30.98
26.04
19.64
15.86
13.76
|
76.36
64.68
55.44
42.21
34.76
29.19
20.05
17.75
15.33
|
87.23
72.98
62.58
49.04
39.90
33.50
25.20
20.27
16.59
|
102.90
89.04
74.45
57.75
47.25
43.16
29.93
24.05
20.90
|
|
315
|
10.0
12.5
16.0
20.0
25.0
31.5
40.0
50.0
63.0
|
116.90
99.96
83.90
65.10
53.45
44.94
33.81
27.20
23.63
|
127.80
108.20
91.88
71.09
58.59
49.14
37.07
29.82
25.83
|
148.10
118.70
102.80
78.54
64.89
54.50
41.06
33.08
28.88
|
157.50
134.40
117.60
89.25
74.34
62.37
47.04
38.80
33.92
|
187.72
159.60
|
|
136.50
104.40
87.15
72.24
54.39
44.31
38.54
|
||||||
|
400
|
10.0
12.5
16.0
20.0
25.0
31.5
40.0
50.0
63.0
|
222.20
193.20
170.00
131.30
105.00
88.52
66.57
53.55
46.41
|
257.40
215.30
183.80
141.80
114.50
96.92
72.24
58.70
51.14
|
276.90
236.30
203.70
156.50
128.10
107.10
80.85
65.21
56.70
|
311.00
262.50
230.00
177.50
144.90
121.80
91.98
74.03
64.37
|
359.90
304.50
264.60
200.60
164.90
138.60
104.70
84.11
73.19
|
|
500
|
10.0
12.5
16.0
20.0
25.0
31.5
40.0
50.0
63.0
|
393.90
329.70
286.70
218.40
180.60
152.30
114.50
92.82
80.85
|
424.40
361.20
306.60
240.50
198.50
164.90
126.00
101.40
88.31
|
462.50
395.90
340.20
263.60
219.50
183.80
138.60
112.40
97.34
|
511.50
432.60
|
582.50
486.20
431.60
326.60
278.30
233.10
176.40
141.80
122.90
|
|
382.20
293.00
243.60
206.90
154.40
123.90
108.20
|
||||||
注:1.不带风扇的减速器,其功率值为本表的0.6~0.75倍。
2.红框内为v>10m/s,应采用循环润滑。
TP型平面包络环面蜗杆减速机的额定输出转矩T2
|
中心距a(mm)
|
传动比i
|
输入轴转速n1(r/min)
|
||||
|
500
|
600
|
750
|
1000
|
1500
|
||
|
输出转矩T2(N·m)
|
||||||
|
80
|
10.0
12.5
16.0
20.0
25.0
31.5
40.0
50.0
63.0
|
416
424
450
424
421
411
381
368
386
|
391
402
434
404
402
394
361
350
361
|
363
383
414
374
382
389
352
336
371
|
330
351
379
348
353
353
313
311
327
|
282
295
319
296
297
301
274
263
276
|
|
100
|
10.0
12.5
16.0
20.0
25.0
31.5
40.0
50.0
63.0
|
833
863
920
855
852
836
771
740
781
|
740
804
872
815
813
796
731
719
748
|
738
763
833
758
769
776
704
681
721
|
667
686
752
690
701
707
649
624
659
|
487
569
616
580
587
592
540
523
550
|
|
125
|
10.0
12.5
16.0
20.0
25.0
31.5
40.0
50.0
63.0
|
1574
1625
1744
1649
1622
1590
1465
1416
1485
|
1431
1497
1662
1554
1529
1502
1383
1353
1401
|
1376
1424
1554
1406
1448
1460
1330
1288
1352
|
1234
1279
1418
1292
1303
1315
1200
1157
1221
|
1012
1022
1138
1054
1066
1076
979
947
998
|
|
160
|
10.0
12.5
16.0
20.0
25.0
31.5
40.0
50.0
63.0
|
3254
3344
3600
3375
3360
3296
3032
2924
3074
|
3025
3141
3411
3217
3223
3148
2896
2841
2941
|
2808
2918
3194
2920
3018
3016
2751
2661
2806
|
2480
2593
2846
2615
2659
2700
2444
2361
2489
|
1995
2098
2345
2129
2150
2166
1978
1906
2009
|
|
200
|
10.0
12.5
16.0
20.0
25.0
31.5
40.0
50.0
63.0
|
6032
6311
6670
6338
6199
6125
5607
5486
5942
|
5565
5797
6350
5891
5789
5706
5264
5140
5322
|
5106
5336
5754
5286
5343
5384
4919
4755
5006
|
4521
4599
4990
4603
4752
4796
4370
4229
4446
|
3487
3703
3969
3704
3749
3791
3462
3327
3503
|
|
250
|
10.0
12.5
16.0
20.0
25.0
31.5
40.0
50.0
63.0
|
10710
10875
12132
11476
11415
11225
10301
10026
10523
|
9857
10374
11378
10583
10596
10439
9623
9461
9791
|
9135
9569
10386
9454
9732
9829
8165
8697
9095
|
7909
8185
8888
8332
8473
8561
7793
7545
7482
|
6220
6657
7049
6614
6689
7353
6170
5968
6284
|
|
315
|
10.0
12.5
16.0
20.0
25.0
31.5
40.0
50.0
63.0
|
20531
21706
22807
21624
21683
21349
19621
18952
19893
|
18704
19579
21048
19904
20039
19700
18163
17789
18380
|
17717
17561
19258
17592
18168
18353
16722
16208
17135
|
14281
15073
16703
15163
15788
15940
14547
14443
15298
|
11316
11933
|
|
12924
11958
12339
12308
11213
10996
11587
|
||||||
|
400
|
10.0
12.5
16.0
20.0
25.0
31.5
40.0
50.0
63.0
|
39025
41954
46214
43614
42595
42053
38634
37314
39072
|
37673
38961
42106
39703
49424
38855
35397
35019
36391
|
33126
34961
38161
35055
35867
36066
32927
31952
33642
|
28201
29441
32667
30158
30774
31129
28446
27559
29032
|
21757
22768
25055
22977
23348
23615
21587
20874
22006
|
|
500
|
10.0
12.5
16.0
20.0
25.0
31.5
40.0
50.0
63.0
|
69181
71595
77939
72547
73264
72352
66450
64677
68066
|
62115
65363
70237
67338
67894
66108
61738
60493
62841
|
55330
53247
63733
59045
61458
61895
56446
55074
57755
|
46382
48519
|
35214
36353
40867
37410
39404
39716
36369
35191
36953
|
|
54285
49782
51736
52878
47750
46123
48799
|
||||||
注:1.不带风扇的减速器,其转矩值为本表的0.6~0.75倍。
2.红框内为v>10m/s,应采用循环润滑。
3.本标准减速器可承受短时间峰值负荷,峰值转矩为额定转矩的2.5倍。
TP型平面包络环面蜗杆减速机的传动总效率η
|
中心距a(mm)
|
传动比i
|
输入轴转速n1(r/min)
|
||||
|
500
|
600
|
750
|
1000
|
1500
|
||
|
效率η(%)
|
||||||
|
80
|
10.0
12.5
16.0
20.0
25.0
31.5
40.0
50.0
63.0
|
87
86
84
82
80
74
71
68
65
|
87
86
85
83
81
75
72
70
66
|
89
88
87
83
83
79
75
72
69
|
90
89
88
84
84
80
76
73
70
|
90
89
88
85
84
80
76
73
70
|
|
100~200
|
10.0
12.5
16.0
20.0
25.0
31.5
40.0
50.0
63.0
|
90
89
87
85
83
77
74
71
68
|
90
89
88
86
84
78
75
73
69
|
92
91
90
86
86
82
78
75
72
|
93
92
91
87
87
83
79
76
73
|
93
92
91
88
87
83
79
76
73
|
|
250~315
|
10.0
12.5
16.0
20.0
25.0
31.5
40.0
50.0
63.0
|
92
91
89
87
85
79
76
73
70
|
92
91
90
88
86
80
77
75
71
|
94
93
92
88
88
84
80
77
74
|
95
94
93
89
89
85
81
78
75
|
95
94
93
90
89
85
81
78
75
|
|
400~500
|
10.0
12.5
16.0
20.0
25.0
31.5
40.0
50.0
63.0
|
92
91
89
87
85
79
76
73
70
|
92
91
90
88
86
80
77
75
71
|
94
93
92
88
88
84
80
77
74
|
95
94
93
89
89
85
81
78
75
|
95
94
93
90
89
85
81
78
75
|
TP型平面包络环面蜗杆减速机蜗杆蜗轮啮合滑动速度v
|
输入轴转速n1(r/min)
|
传动比i
|
中心距a(mm)
|
||||||||
|
80
|
100
|
125
|
160
|
200
|
250
|
315
|
400
|
500
|
||
|
滑动速度v(m/s)
|
||||||||||
|
500
|
10.0
12.5
16.0
20.0
25.0
31.5
40.0
50.0
63.0
|
1.0
1.0
0.8
0.8
0.8
0.8
0.8
0.8
0.8
|
1.2
1.2
1.0
1.0
1.1
1.0
1.0
1.1
1.1
|
<, DIV align=center>1.5
1.5
1.2
1.3
1.3
1.2
1.3
1.3
1.3
|
1.9
1.9
1.6
1.6
1.7
1.6
1.6
1.7
1.7
|
2.4
2.4
2.0
2.0
2.1
1.9
2.0
2.0
2.1
|
3.1
3.1
2.4
2.4
2.4
2.5
2.3
2.4
2.4
|
3.8
3.8
3.1
3.0
3.0
3.1
2.9
3.0
3.0
|
4.8
4.9
3.8
3.7
3.8
3.8
3.6
3.7
3.8
|
6.0
6.0
4.9
4.7
4.8
4.9
4.6
4.7
4.8
|
|
750
|
10.0
12.5
16.0
20.0
25.0
31.5
40.0
50.0
63.0
|
1.5
1.5
1.2
1.2
1.2
1.2
1.2
1.2
1.3
|
1.8
1.8
1.5
1.6
1.6
1.5
1.5
1.6
1.6
|
2.3
2.3
1.9
1.9
1.9
1.8
1.9
1.9
2.0
|
2.8
2.9
2.4
2.4
2.5
2.3
2.4
2.5
2.5
|
3.6
3.6
3.0
3.1
3.1
2.9
3.0
3.1
3.1
|
4.6
4.6
3.7
3.5
3.6
3.7
3.5
3.6
3.7
|
5.7
5.7
4.6
4.4
4.5
4.6
4.3
4.5
4.6
|
7.3
7.3
5.8
5.5
5.7
5.8
5.4
5.6
5.7
|
9.1
9.0
7.3
7.0
7.1
7.3
6.8
7.1
7.2
|
|
1000
|
10.0
12.5
16.0
20.0
25.0
31.5
40.0
50.0
63.0
|
2.0
2.0
1.6
1.6
1.6
1.5
1.6
1.6
1.7
|
2.4
2.4
2.1
2.1
2.2
2.0
2.1
2.2
2.2
|
3.1
3.1
2.5
2.6
2.6
2.4
2.5
2.6
2.7
|
3.8
3.8
3.2
3.3
3.3
3.1
3.2
3.3
3.4
|
4.7
4.8
4.0
4.1
4.1
3.9
4.0
4.1
4.2
|
6.1
6.2
4.9
4.7
4.8
4.9
4.6
4.8
4.9
|
7.6
7.6
6.2
5.9
6.1
6.1
5.8
6.0
6.1
|
9.7
9.7
7.7
7.4
7.6
7.7
7.2
7.5
7.6
|
12.1
12.1
|
|
9.7
9.3
9.5
9.7
9.1
9.4
9.7
|
||||||||||
|
1500
|
10.0
12.5
16.0
20.0
25.0
31.5
40.0
50.0
63.0
|
3.0
3.0
2.4
2.4
2.5
2.3
2.4
2.4
2.5
|
3.6
3.6
3.1
3.1
3.3
3.0
3.1
3.2
3.2
|
4.6
4.6
3.7
3.9
3.9
3.6
3.8
3.9
4.0
|
5.7
5.7
4.8
4.9
5.0
4.7
4.8
5.0
5.0
|
7.1
7.2
6.0
6.1
6.2
5.8
6.0
6.1
6.3
|
9.2
9.2
7.3
7.1
7.3
7.4
7.0
7.2
7.3
|
11.4
11.5
|
14.5
14.6
11.5
11.1
11.3
11.5
10.8
11.2
11.4
|
18.1
18.1
14.6
14.0
14.3
14.6
13.7
14.1
14.5
|
|
9.2
8.9
9.1
9.2
8.7
9.0
9.1
|
||||||||||
注:红框内为v>10m/s,应采用循环润滑。
TP型平面包络环面蜗杆减速机低速轴轴端许用径向负荷Fr

减速器低速轴轴端许用径向负荷Fr
|
负荷
|
中心距a(mm)
|
||||||||
|
80
|
100
|
125
|
160
|
200
|
250
|
315
|
400
|
500
|
|
|
Fr(N)
|
3900
|
4900
|
6800
|
8460
|
11200
|
14700
|
17800
|
22500
|
27500
|
TP系列减速机技术要求

接触斑点的大小
|
精度等级
|
项目
|
中心距a(mm)
|
||
|
80~160
|
>160~315
|
>315~630
|
||
|
7
|
蜗轮齿面接触斑点
|
按高度不小于70% 按宽度不小于70%
|
||
|
蜗杆齿面接触斑点
|
按长度不小于70% 接触部位偏向入口
|
|||
|
8
|
蜗轮齿面接触斑点
|
按高度不小于60% 按宽度不小于60%
|
||
|
蜗杆齿面接触斑点
|
按长度不小于60% 接触部位偏向入口
|
|||
接触斑点的大小
侧隙jC和jb
|
侧隙(μm)
|
中心距a(mm)
|
||
|
80~160
|
>160~315
|
>315~500
|
|
|
中等侧隙jC≤
|
220
|
380
|
530
|
|
较小保证侧隙jb≤
|
55
|
95
|
130
|
轴承的轴向间隙
|
轴承内径d1(mm)
|
轴向间隙(μm)
|
|
|
蜗杆轴承
|
蜗轮轴承
|
|
|
30
|
0
|
—
|
|
>30~50
|
0
|
20~50
|
|
>50~80
|
0
|
40~70
|
|
>80~120
|
0
|
50~100
|
|
>120~180
|
0
|
80~150
|
减速机的选用方法和润滑
1)减速器的选用
①选用的已知条件:
a.原动机类型及工作机负荷性质;
b.额定输入功率P1(kW)或额定输出转矩T2(N·m);
c.输入转速n1(r/min);
d.最大输出转矩T2max(N·m)(对于低速传动的场合);
e.传动比;
f.输入输出轴的相对位置;
g.输入输出轴的转向、装配型式。
②工作类型:
a.负荷性质;
b.每日运行时间(h);
c.每小时启动次数;
d.小时负荷率JC(%)。
③环境温度。
④输出轴轴端附加负荷。
2)减速器的润滑
①蜗杆蜗轮啮合,一般采用浸油润滑,浸油液面,对于TPG型式,采用全浸;对于TPU式、TPA型式、TPS型式,液面与蜗杆轴线重合,当啮合滑动速度v>10m/s时,采用强迫润滑。
②在通常情况下,可根据滑动速度的大小,选择润滑油牌号,表1为推荐的润滑油牌号。
推荐润滑油牌号
|
黏度(cst/40℃)
|
润滑油
|
|
|
蜗轮蜗杆油牌号
|
适用滑动速度(m/s)
|
|
|
748~612
|
N680蜗轮油
|
1~2.5
|
|
506~414
|
N460蜗轮油
|
1~2.5
|
|
352~288
|
N320蜗轮油
|
2.5~5
|
|
242~198
|
N220蜗轮油
|
5~10
|
③润滑油不允许采用极压齿轮油。
④减速器的润滑油量按油标加注,可按表2所列油量备油。
润滑油油量
|
中心距a(mm)
|
80
|
100
|
125
|
160
|
200
|
250
|
315
|
400
|
500
|
|
油量(L)
|
1.6
|
2.7
|
4.7
|
8.8
|
16
|
28
|
50
|
85
|
160
|
3)采用强制润滑
润滑油黏度为242~198 cst/40℃,注油压力为1.5~2.5Pa,每分钟注油量按表3的规定。
强制润滑时的注油量
|
中心距a(mm)
|
80
|
100
|
125
|
160
|
200
|
250
|
315
|
400
|
500
|
|
注入量(L/min)
|
1.5
|
2
|
3
|
4
|
6
|
10
|
15
|
20
|
20
|





